BAY HOUSE

INTERNAL ALTERATIONS

DETAILED DESIGN STAGE

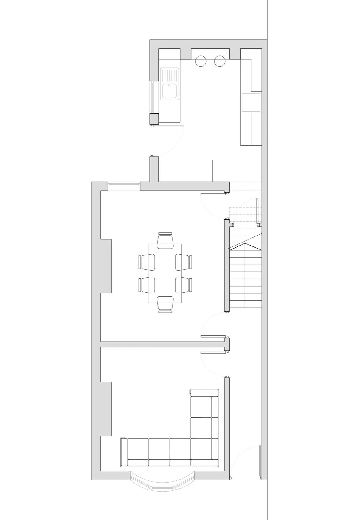
This is a simple internal remodelling project that tweaks 3 key openings in this terraced house to help connect the kitchen to the dining room, create much more storage space, and a better flow out to the garden. The new layout allows for a much more generous and functional kitchen space. We have also been involved in some interior design for the upstairs spaces of this house, and the new bathroom is nearing completion.

Previous
Previous

MEADOW HOUSE

Next
Next

STONE HOUSE