ROCK HOUSE

EXTENSION AND REMODELLING

DEVELOPED DESIGN STAGE

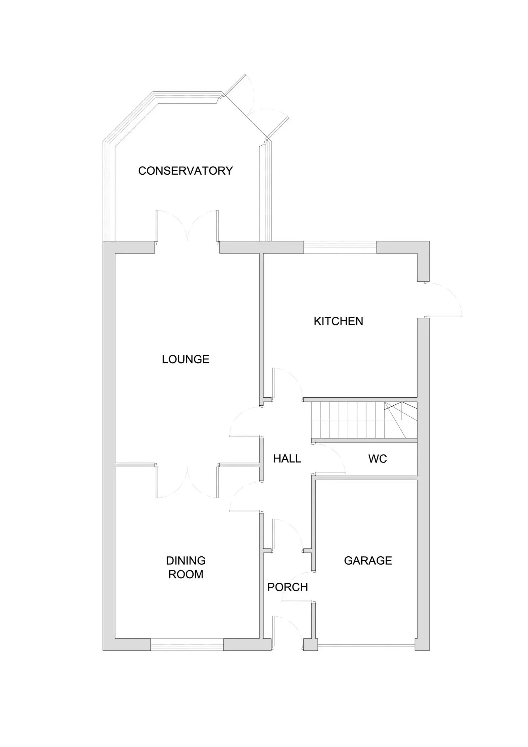
Rock house is an extension and remodelling project of an existing family home. A single storey rear extension combined with a loft conversion creates a large kitchen and family room, a new bedroom and a more contemporary external appearance. A small extension to the front creates a covered entrance area and allows a small study space and utility to be fitting into the centre of the plan, without taking away from the snug or garage spaces.

Previous
Previous

GREEN HOUSE

Next
Next

BIRCH HOUSE